Настенный биокамин Firezo Сorpo Dipinto
Биокамин Firezo Сorpo Dipinto с простым и современным дизайном идеально подходит для любого стиля интерьера. Он станет оригинальным украшением любого помещения. Элегантная форма Сorpo Dipinto позволяет подчеркнуть декор как гостиной, так и спальни. Живой огонь придаст вашему помещению особый шарм и роскошь.
Различные модели каминов Firezo хорошо подходят для помещений любого размера. Наши биокамины разработаны лучшими инженерами и дизайнерами, поэтому возле них будет приятно провести время холодными зимними вечерами.
Данный биокамин Firezo Сorpo Dipinto использует передовые технологии, благодаря чему пламя выглядит максимально естественно, а материалы полностью безопасны для любого помещения - как дома, так и квартиры.
На рынке биокаминов представлено множество продуктов, которые заявляют о безопасности, но немногие могут подтвердить эти заявления. Firezo Сorpo Dipinto — один из немногих продуктов, которые могут это сделать. Можете быть уверены, что ваша семья будет безопасности при его использовании.
Firezo Сorpo Dipinto не требует сборки и подключения к вытяжке или дымоходу, что делает его отличным выбором для тех, кто хочет получить простой в установке биокамин.
Особенности конструкции

Топливные блоки
Топливный блок Firezo Сorpo Dipinto изготовлен из жаропрочной нержавеющей стали и скреплен с помощью аргоновой сварки, что делает его устойчивым к деформации. Металлическая решетка предназначена для создания оптимального уровня огня и эффективного сжигания биотоплива. Размер отверстий решетки подобран таким образом, чтобы концентрировать необходимое количество паров от биотоплива.
В биокамине Firezo Сorpo Dipinto используется керамическая вата, которая способствует уменьшению расхода топлива за счет снижения уровня испарения. Она может использоваться при высоких температурах и помогает сохранить функциональность камина на долгие часы работы.
Тщательно выбирайте топливные блоки — они могут повлиять на безопасность вашего помещения и срок службы вашего камина. Все топливные блоки каминов Firezo надежно загерметизированы!
Очаг
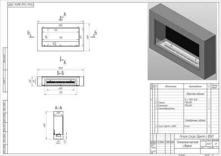
Биокамин Firezo Сorpo Dipinto имеет длину 900 мм, но может быть изготовлен на заказ по вашим индивидуальным размерам. Линия огня имеет прямоугольную форму. Сварная конструкция очага гарантирует монолитность биокамина и исключает любые возможные проблемы, которые могут возникнуть в результате деформации резьбовых соединений под воздействием тепла после длительного использования.
Материал очага Firezo относится к особому классу: он изготовлен и специального металлического сплава, жаропрочного и устойчивого к деформации.
Продукция поставляется с 10-летней гарантией производителя и сертифицирована. Вместе с покупкой Firezo Сorpo Dipinto в подарок также вы получаете биотопливо, таким образом ваш биокамин будет готов к использованию сразу, без необходимости докупать что либо еще.

Основные характеристики биокамина
- Базовые размеры камина: 900x200x450 мм
- Длинна на заказ: от 600 до 2300 мм
- Линия огня: 400 мм
- Время горения: 3 ч
- Объём топки: 2.1 л
- Тип биокамина: Настенный
- Тип топлива: Биотопливо
- Тип управления: Механический
- Цвет: Черный
- Используемые материалы: Нержавеющая сталь
Дополнительная комплектация
- Фронтальную часть биокамина Firezo Сorpo Dipinto можно оснастить защитной термостойкой перегородкой из закаленного стекла (не входит в базовую комплектацию). Такая перегородка обеспечит дополнительную защиту и придаст камину более законченный вид.
- Заднюю стенку Firezo Сorpo Dipinto можно заменить панелью из тонированного закаленного стекла Stemalite (не входит в комплект). Это повысит жаропрочность, а также поможет более равномерно распределять тепло.
|
Страна
|
Россия |
|
Размеры (Д*Ш*В)
|
950x200x420 мм |
|
Модель
|
Сorpo Dipinto 900 |
|
Линия огня
|
400 |
|
Время горения
|
3 |
|
Объём топки
|
0,9 |
|
Рекомендованная площадь помещения
|
20 |
|
Тип биокамина
|
Настенный |
|
Тип топлива
|
Биотопливо |
|
Тип управления
|
Механический |
|
Цвет
|
Черный |
|
Материал топки
|
Нержавеющая сталь |
|
Стекло
|
Опционально |
|
Стиль
|
Лофт |
|
Предназначение
|
Для общеукрепляющего воздействия |
|
Управление
|
Пульт управления |
Для покупки товара в нашем интернет-магазине выберите понравившийся товар и добавьте его в корзину. Далее перейдите в Корзину и нажмите на «Оформить заказ» или «Быстрый заказ».
Когда оформляете быстрый заказ, напишите ФИО, телефон и e-mail. Вам перезвонит менеджер и уточнит условия заказа. По результатам разговора вам придет подтверждение оформления товара на почту или через СМС. Теперь останется только ждать доставки и радоваться новой покупке.
Оформление заказа в стандартном режиме выглядит следующим образом. Заполняете полностью форму по последовательным этапам: адрес, способ доставки, оплаты, данные о себе. Советуем в комментарии к заказу написать информацию, которая поможет курьеру вас найти. Нажмите кнопку «Оформить заказ».
Оплачивайте покупки удобным способом. В интернет-магазине доступно 3 варианта оплаты:
- Наличные при самовывозе или доставке курьером. Специалист свяжется с вами в день доставки, чтобы уточнить время и заранее подготовить сдачу с любой купюры. Вы подписываете товаросопроводительные документы, вносите денежные средства, получаете товар и чек.
- Безналичный расчет при самовывозе или оформлении в интернет-магазине: карты Visa и MasterCard. Чтобы оплатить покупку, система перенаправит вас на сервер системы ASSIST. Здесь нужно ввести номер карты, срок действия и имя держателя.
- Электронные системы при онлайн-заказе: PayPal, WebMoney и Яндекс.Деньги. Для совершения покупки система перенаправит вас на страницу платежного сервиса. Здесь необходимо заполнить форму по инструкции.
Экономьте время на получении заказа. В интернет-магазине доступно 4 варианта доставки:
- Курьерская доставка работает с 9.00 до 19.00. Когда товар поступит на склад, курьерская служба свяжется для уточнения деталей. Специалист предложит выбрать удобное время доставки и уточнит адрес. Осмотрите упаковку на целостность и соответствие указанной комплектации.
- Самовывоз из магазина. Список торговых точек для выбора появится в корзине. Когда заказ поступит на склад, вам придет уведомление. Для получения заказа обратитесь к сотруднику в кассовой зоне и назовите номер.
- Постамат. Когда заказ поступит на точку, на ваш телефон или e-mail придет уникальный код. Заказ нужно оплатить в терминале постамата. Срок хранения — 3 дня.
- Почтовая доставка через почту России. Когда заказ придет в отделение, на ваш адрес придет извещение о посылке. Перед оплатой вы можете оценить состояние коробки: вес, целостность. Вскрывать коробку самостоятельно вы можете только после оплаты заказа. Один заказ может содержать не больше 10 позиций и его стоимость не должна превышать 100 000 р.
